« ... « CONDO

Ville de Québec Condo à vendre - 315,600 $

1683 Rue Estiembre, G3E 1E7 | Condo à vendre Capitale-Nationale | #VID : 1683

3

3

508 m²

Condo à vendre - 1683 Rue Estiembre, Ville de Québec, G3E 1E7Condo à vendre - 1683 Rue Estiembre, Ville de Québec, G3E 1E7
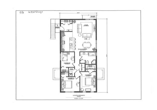
Condo 5½ au deuxième étage, 3 chambres à coucher, emplacement pour laveuse-sécheuse, céramique 12x24, armoires jusqu'au plafond, bain podium, douche indépendante en céramique. Balcon 10x12. Frais de copropriété 121.25$/mois. Nouveaux lots à venir.

Addenda :

Inclusions :
Voir plans et devis, garantie maison neuve
Exclusions :
Voir plans et devis, aménagement paysager

Détails clés

Informations générales

Type de propriété :Condo

Essentielles - Condo

# ULS :17824233
Prix demandé :315,600 $
Année de construction :2025
Nombre de chambres à coucher :3
Nombre total de pièces :5

Bâtiment, dimensions, zonage

Superficie du terrain :508 m²

Caractéristiques intérieures

Énergie/Chauffage :Électrique
Fenêtres :PVC

Caractéristiques extérieures

Type de toiture :Bardeaux d'asphalte
Stationnement :Allée
Approvisionnement en eau :Municipalité
Système d'égoûts :Municipalité

Informations additionnelles

Lien de propriété (FR) :Voir plus - Condo à vendre - 315,600 $

Configuration des pièces de l'unité

Type de chambre
Étage
Type de sol
Dimensions
Unité n° : 1
Sous-sol
2
Non spécifié
16' 2" x 12' 0"
Salle à manger
2
Non spécifié
15' 2" x 10' 0"
Chambre à coucher principale
2
Non spécifié
11' 0" x 15' 6"
Chambre à coucher
2
Non spécifié
12' 10" x 10' 0"
Chambre à coucher
2
Non spécifié
9' 2" x 10' 6"


Avatar
Gabriel Roberge
(418) 576-7528
Afficher Mon Profil >>

Calculateur Hypothécaire

20% $0
5.5%
25 ans
Montant Hypothécaire Estimé Mise de Fonds
Valeur de la Propriété
Mise de Fonds

Montant Hypothécaire Estimé

Versement Hypothécaire Estimé

Droits de Mutation*
* Montant indicatif; varie selon la municipalité au Québec.

Propriétés à vendre à proximité :

Nouvelle annonce
Condo à vendre - 1679 Rue Estiembre, Ville de Québec, G3E1E7
CONDO
CAPITALE-NATIONALE
336,275 $

1679 Rue Estiembre,
Ville de Québec, G3E 1E7

3

Condo à vendre - 895A Rue St-Vallier E., Ville de Québec, G1K3P9
CONDO
CAPITALE-NATIONALE
325,000 $

895A Rue St-Vallier E.,
Ville de Québec, G1K 3P9

1

Condo à vendre - 1300 Ch. Ste-Foy, App. 1010, Ville de Québec, G1S0A6
CONDO
CAPITALE-NATIONALE
350,000 $

1300 Ch. Ste-Foy, App. 1010,
Ville de Québec, G1S 0A6

2

Nouvelle annonce
Condo à vendre - 19079 Boul. Henri-Bourassa, App. 203, Ville de Québec, G1G6M3
CONDO
CAPITALE-NATIONALE
250,000 $

19079 Boul. Henri-Bourassa, App. 203,
Ville de Québec, G1G 6M3

3

Condo à vendre - 830 Av. des Jésuites, App. 1, Ville de Québec, G1S3N1
CONDO
CAPITALE-NATIONALE
189,000 $

830 Av. des Jésuites, App. 1,
Ville de Québec, G1S 3N1

2

Condo à vendre - 834 Av. De Lévis, App. 4, Ville de Québec, G1S3E1
CONDO
CAPITALE-NATIONALE
318,900 $

834 Av. De Lévis, App. 4,
Ville de Québec, G1S 3E1

2

Condo à vendre - 1191 Boul. René-Lévesque O., App. 3, Ville de Québec, G1S1V8
CONDO
CAPITALE-NATIONALE
349,000 $

1191 Boul. René-Lévesque O., App. 3,
Ville de Québec, G1S 1V8

3

Condo à vendre - 160 Côte du Colonel-Dambourgès, App. 117, Ville de Québec, G1K8L5
CONDO
CAPITALE-NATIONALE
395,000 $

160 Côte du Colonel-Dambourgès, App. 117,
Ville de Québec, G1K 8L5

1