« PROPRIÉTÉS DE TERRAIN « VAL DAVID « TERRAIN « VAL DAVID TERRAIN À VENDRE - 119,900 $

Val David Terrain à vendre - 119,900 $

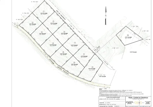
Rue de Chandolin, J0T 2N0 | Terrain à vendre Laurentides - VID : T151357

4,001 m²

Terrain à vendre -  Rue de Chandolin, Val David, J0T 2N0Terrain à vendre -  Rue de Chandolin, Val David, J0T 2N0Terrain à vendre -  Rue de Chandolin, Val David, J0T 2N0Terrain à vendre -  Rue de Chandolin, Val David, J0T 2N0
Beau terrain situé sur la rue Chandolin à Val-David, dans un secteur homogène, paisible et recherché. L'emplacement est vraiment pratique : accès rapide au village de Val-David, à Sainte-Agathe et à l'autoroute. Le terrain est facile d'accès, entouré de nature, et offre un cadre idéal pour un projet résidentiel où tranquillité et proximité des services se rencontrent. Une belle opportunité pour ceux qui veulent bâtir dans un coin de qualité, sans s'éloigner de la vie active des Laurentides. 6 351 727 Cadastre du Québec

INCLUSIONS
--

EXCLUSIONS
--

Charactéristiques :
Terrain boisé : feuillus

Détails clés

Informations générales

Type de propriété :Terrain

Informations essentielles

Prix demandé :119,900 $

Dimensions et type

Superficie du terrain :4,001 m²
Profondeur du terrain :67.15
Façade du terrain :58.53
Irrégulier :Non

Caractéristiques

Topographie :En pente, Plat
Approvisionnement en eau :Aucun
Système d'égoûts :Aucun

Informations additionnelles

Lien de propriété (Français) :https://propriodirect.com/
Avatar
Stéfany Lavigne
COURTIER IMMOBILIER RÉSIDENTIEL ET COMMERCIAL
(450) 229-2992
Afficher Mon Profil >>

Calculateur Hypothécaire

20% $0
5.5%
25 ans
Montant Hypothécaire Estimé Mise de Fonds
Valeur de la Propriété
Mise de Fonds

Montant Hypothécaire Estimé

Versement Hypothécaire Estimé

Droits de Mutation*
* Montant indicatif; varie selon la municipalité au Québec.

Propriétés à vendre à proximité :

Terrain à vendre -  Rue du Génévrier, Val David, J0T2N0
TERRAIN
LAURENTIDES
178,000 $

Rue du Génévrier,
Val David, J0T 2N0

4,196 m²

Nouvelle annonce
Terrain à vendre -  Rue de la Giroflée, Val David, J0T2N0
TERRAIN
LAURENTIDES
149,000 $

Rue de la Giroflée,
Val David, J0T 2N0

4,019 m²

Terrain à vendre - 39 Ch. du Grand-Belvédère, Val David, J0T2N0
TERRAIN
LAURENTIDES
299,000 $

39 Ch. du Grand-Belvédère,
Val David, J0T 2N0

5,817 m²

Terrain à vendre -  Rue de Lausanne, Val David, J0T2N0
TERRAIN
LAURENTIDES
75,000 $

Rue de Lausanne,
Val David, J0T 2N0

1,261 m²

Nouvelle annonce
Terrain à vendre -  Rue du Génévrier, Val David, J0T2N0
TERRAIN
LAURENTIDES
195,000 $

Rue du Génévrier,
Val David, J0T 2N0

4,199 m²

Terrain à vendre - 2180 Ch. de la Rivière, Val David, J0T2N0
TERRAIN
LAURENTIDES
189,900 $

2180 Ch. de la Rivière,
Val David, J0T 2N0

91,940 pi²

Terrain à vendre -  Route 117, Val David, J0T2N0
TERRAIN
LAURENTIDES
699,000 $

Route 117,
Val David, J0T 2N0

275,104

Terrain à vendre -  Mtée Gagnon, Val David, J0T2N0
TERRAIN
LAURENTIDES
98,000 $

Mtée Gagnon,
Val David, J0T 2N0

1,394 m²